How to measure and install your windscreen
A Step-by-Step Guide to Mastering Windscreens
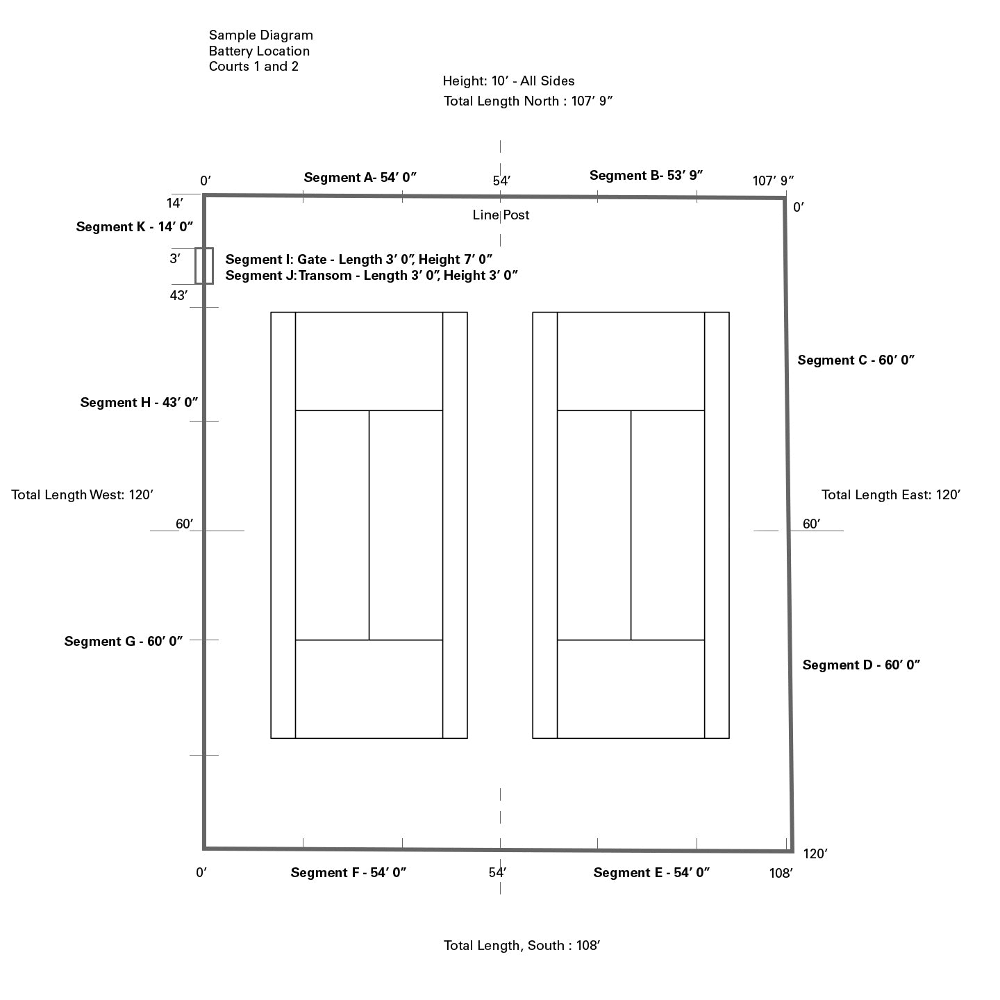
Diagram Your Court
- Map it out
Measuring your fences precisely is critical to getting a great looking, and effective, windscreen. Draw a map of your courts and fence line. Using the instructions below, measure the length and height of each fence segment, and mark those measurements on your diagram. You’ll use this diagram to assemble your windscreen segments during installation.
- Measure every piece
No two fences are identical. Even if one side of a fence looks the same as another, you need to measure it to be certain. Exact measurements are necessary, including feet and inches. Do not guess or round off dimensions. Measure every segment, and write down the measurements to the nearest inch.
- Label every piece
Label each segment on your diagram so that when your windscreen arrives, you can put it together correctly and match each segment to the right place on your fence. We’ll ask for a copy of this diagram when you place your order so that each windscreen will be properly labeled when it is shipped to you.
